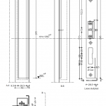
Verwisselbare hoeksluitplaat
Als uitbreiding op een standaard verwisselbare sluitplaat kunnen de kozijnen worden uitgevoerd met een verwisselbare hoeksluitplaat.
Deze hoeksluitplaat heeft een aanloop voor de dagschoot en voorkomt de beschadiging op de radius tussen spiegel en dagkant van de sponning van het kozijn. Eventueel kan deze hoeksluitplaat aanvullend met een instelbare dagschootvanger worden uitgevoerd.
Verwisselbare hoeksluitplaat
download infoblad als:
pdf
Verwisselbare hoeksluitplaat met instelbare dagschootvanger
download infoblad als:
pdf




